Te koop
Winkelruimte op topligging in Antwerpen te ANTWERPEN
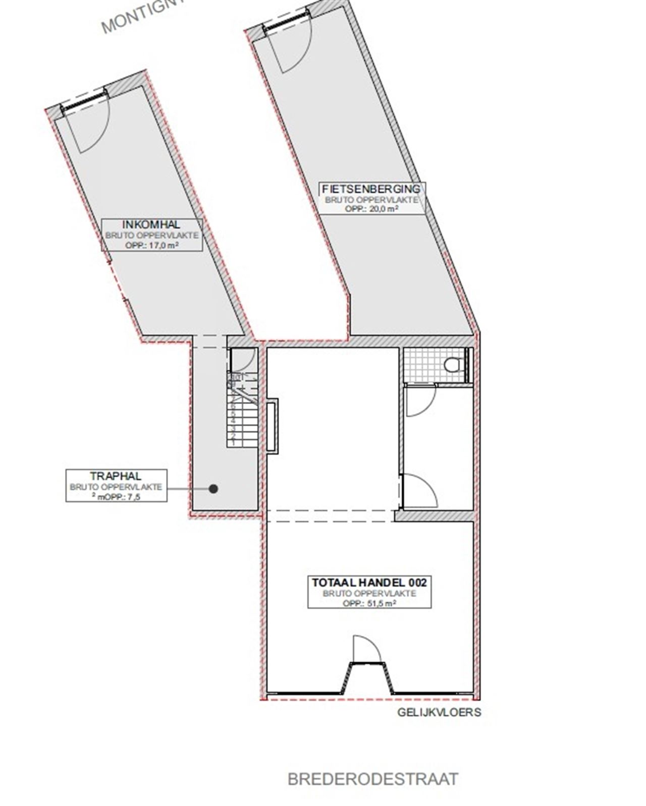
Omschrijving
Bent u op zoek naar een locatie voor uw nieuw kantoor of handelszaak? Dan is dit gelijkvloers gelegen op een topligging in Antwerpen precies wat u zoekt. Ook als investering is dit een uitzonderlijk pand waar u een hoge opbrengst kan genereren.
Bijzonderheden:
EPC Energielabel D
Geen renovatieplicht
CV op gas
P-score: C
G-score: C
Stedenbouwkundige informatie
Voorkooprecht:
NeeBouwvergunning verkregen:
In aanvraagDagvaarding en herstelvordering:
In aanvraagVerkavelingsvergunning:
In aanvraagBestemming:
In aanvraagEnergie certificaat
EPC No.
20211025-0002483603-KNR-1EPC:
Op aanvraagComfort
Verwarming:
CV op gasKeuken:
Beglazing:
Raamkozijn:
Heeft u interesse in dit pand?
NEEM CONTACT OP VIA ONDERSTAAND FORMULIER:
CENTURY 21 ADVIESKANTOOR
Boterlaarbaan 311,
2100 Deurne
Elk kantoor is juridisch onafhankelijk.
BTW – BE 0838.613.401

Uw woning, appartement of bouwgrond snel verkopen? Investeren in vastgoed?
BEL ONS VOOR EEN AFSPRAAK
0477 50 45 65
Onze regio
Century 21 Advieskantoor is uw regiospecialist
in Deurne en alle randgemeenten.


VASTGOED SNEL VERKOPEN?
Informeer bij Century 21 Advieskantoor,
dankzij ons mobiel nummer zijn wij 7 op 7 beschikbaar.
0477 50 45 65




